
产品用途
PGZ/SGZ型系列离心机是一种间歇操作的过滤式自动离心机。适用于分离含固相颗粒≥0.01mm的悬浮液,如含粒状、结晶状或纤维状固相颗粒的固液分离,该机由主机和电气控制系统这二大部分组成。PGZ/SGZ型系列全自动离心机与普通三足式上卸料离心机相比,具有生产效率高、劳动强度低、运转平稳、操作条件好等特点,可广泛应用于化工、轻工、制药、食品、冶金等工业部门。
产品结构和特点
SGZ、PGZ型离心机是一种刮刀下部卸料、间歇操作的过滤设备。物料由上部加入转鼓,在离心力场作用下,液相穿过过滤介质排出机外,固相物截留在转鼓内,转鼓降速后用刮料器刮落从离心机下部排出。具有运转平稳、操作方便等特点。
SGZ、PGZ型离心机可按使用要求设定程序,自动完成进料、分离、洗涤、脱水、卸料等工序,可实现远、近距离操作。具有自动化程度高、处理量大、分离效果好等特点。
PGZ型离心机取消了传统悬挂式机腿。采用平板配重及高粘度阻尼剂隔振器吸振,无基础安装。

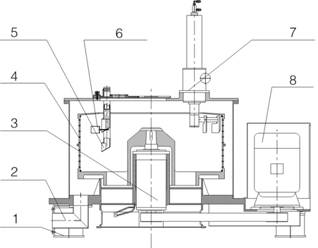
1.减振器 2.出液管
3.主轴部件 4.转鼓
5.进料管 6.料层控制器
7.刮刀部件 8.主电机
